热门动态
联系我们

- 电话 : 0755-84596060
- 手机 : 136-0269-8795
- 邮箱 : muniheidianti@126.com
- 网址 : http://www.bjlmh.cn
- 地址 : 惠州市龙翔大道6006号新洲广场华丰大厦1201室
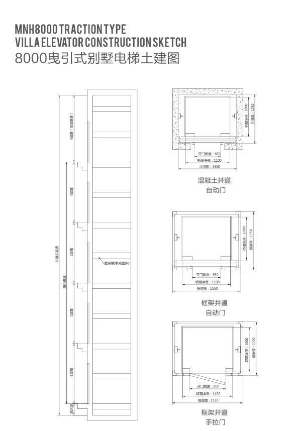
强驱曳引式家用别墅电梯MNH8000
采用新一代强制驱动同步主机,取消对重平衡装置,配置德国进口高强度钢丝绳,大大提高了井道利用率,在轿厢宽度方向可比有对重平衡装置的结构增大250mm。配置380V电压电源,功率略高于MNH3000及MNH5000系列产品,但是在轿厢宽度尺寸上优势极大。此外底坑深度要求低,仅200mm即可,在保证保留缓冲装置的同时,又极大的降低了土建要求。
强驱曳引式别墅电梯的特点:
驱动方式为强制驱动,没有对重平衡装置,节约了大量井道空间,主机采用新一代强制驱动同步主机,噪音小,节能环保,顶层高度和底坑深度及井道利用率达到了更佳效果。
适用的井道:
井道净宽尺寸较小的全混凝土、部分混凝土、混凝土框架结构、钢结构及铝合金井道架。以及在井道净宽及净深尺寸满足的情况下,底坑深度允许程度较小的井道。
可做封闭效果及观光效果。
电梯开门:
在井道宽度大于1350的情况下,可选用电动门,在更小的宽度尺寸下,我们推荐使用手拉门。
富士别墅电梯是专为家庭使用环境定制的电梯产品,有别于一般客用公用电梯的使用环境——有专门的电梯安全员进行应急管理,家用别墅电梯需要在遇到故障时便捷迅速的联络到我们的服务专员以及在一定的情况下自行开门放人。为此,我们专门为您的电梯配置了以下安全保障功能,及时一个人在家,有能安心使用电梯。

一键拨号及电话功能
富士家用别墅电梯的轿厢内都设有安全又美观的一键拨号的服务按钮跟集成在操控盘上的固定电话键盘,可以方便的联络到我们的维修专员,即使电梯遇紧急故障也能够第一时间拨通双保险电话,其中一键拨号系统已预存4个服务号码,只需按一下呼叫按钮,便可以自动播出通话,老人与儿童都可以方便使用,在按下按钮得同时系统会向我们的服务中心发送电梯位置及使用者信息与故障代码,方便维修专员更快的速度更高的效率奔赴电梯现场处理问题。
物联网智慧电梯
富士别墅电梯全系配置智能系统,可实时掌握每一台电梯的实时状况,记录长期运行参数、及电梯使用档案,可系统化管理电梯服务工作,便于维护专员了解电梯的保养维修档案,为您的电梯稳定安全保驾护航。

ARD(停电应急平层救援功能)
富士家用电梯配备了先进的停电应急救援装置,在停电时能以蓄电池电力将电梯行驶至更近楼层停靠开门,蓄电池配备了3安时的大容量锂电池,即使在频繁停电的情况下,也能够保证短时间内连续运行三次,在电力不稳定时,给您的家人提供更安心的开门保障,安心使用,放心无忧。
家庭版专用控制柜
电梯的控制柜是电梯的大脑,也是电梯主要噪音来源之一,传统客用电梯的使用环境不需要过多考虑噪音影响及无安全员应急的使用情况,而且体积大,外形笨重,所以我们为您配置了安静聪明又小巧美观的家庭版电梯控制柜,在安静的同时,还可以部分替代电梯安全员,在电梯检测到无安全隐患需要自动保护的故障时,先平层开门,让乘客离开电梯,再自行保护及通报故障。
MNH8000型曳引式别墅电梯的土建结构
顶层高度:≥2900mm
底坑深度:≥200mm
更小楼层高度:≥2200mm
井道与轿厢净宽差值:350mm
井道与轿厢净深差值:手拉门时:100mm 电动中分门时:150mm

